Закрытая территория
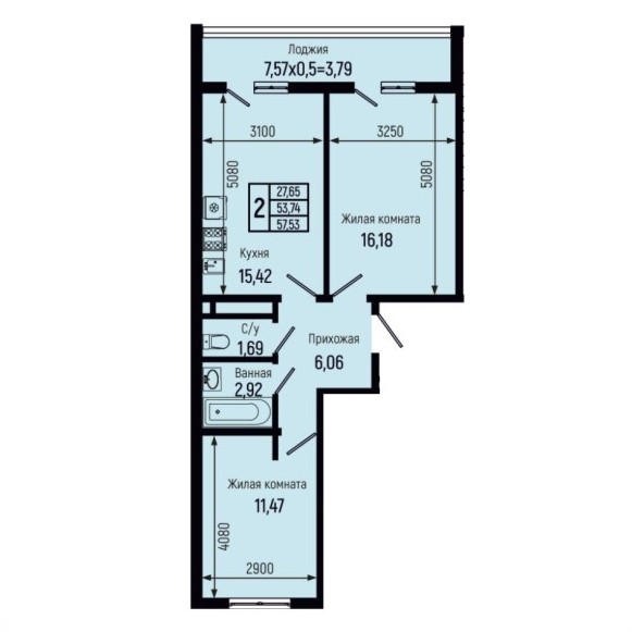
от 15.85 до 59.68 м²
1600 метров
от 9 до 18 этажей
3 кв. 2027
Жилой комплекс расположен на побережье Черного моря. Он сочетает в себе спокойную атмосферу и в то же время приватность. Данный жилой комплекс создан для комфортного отдыха с детьми всей семьей и проживания в окружении гор для тех, кто стремится к покою и уединению. Приятный мягкий климат позволяет отдыхать круглый год. Чистый горный воздух хвойного леса и чистое открытое море делают это место уникальным.
ЖК Ботаника Хиллс расположен в Небуге, это поселок в Туапсинском районе Краснодарского края, который находится между Геленджиком и Сочи. В 17 км от Небуга расположен Ж/Д вокзал в Туапсе. Электричка Ласточка из Туапсе довезет вас до Сочи за 1 ч 43 мин, откуда вы можете улететь на самолете в любом направлении. Также вы можете уехать в аэропорт Краснодара, который расположен в 160 км.
Комплекс расположен на закрытой охраняемой территории, площадью 5.5 Га.
Продаю квартиры от надежных застройщиков без комиссий и переплат.
Со мной выгодно и надежно.
Семейная, Траншевая, IT
Использовать при покупке
Персональные скидки
Индивидуальные условия
Лет на рынке
Объектов сдано
Объектов строят
Рейтинга ЕРЗ по Краснодарскому краю

